Serie A-150
Perfiles de Aluminio A-15
Perfiles de Aluminio A-15 La Serie A-15 de EurometalArjona es un avanzado sistema de ventanas y puertas diseñado para satisfacer las exigencias de cualquier proyecto arquitectónico. Con un diseño robusto y eficiencia energética, ofrece perfiles de marco de alta calidad que garantizan un excelente aislamiento térmico y acústico
Este sistema permite una integración estética perfecta gracias a su disponibilidad en varios acabados, incluyendo colores RAL, efecto madera y anodizado. Ideal para aplicaciones residenciales y comerciales, la Serie A-15 combina funcionalidad y durabilidad para mejorar cualquier espacio arquitectónico.
[ CORREDERAS / PERIMETRALES ]
A-15
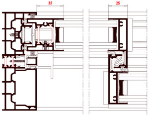
Secciones y espesores
SECCIONES
- Marcos: 79 mm (2 carriles) y 127 mm (3 carriles)
- Hoja: 32 mm
ESPESOR MEDIO TEÓRICO
- 1,5 mm – 1,6 mm
Dimensiones y pesos máximos
- Peso Máximo: 500 Kg.
Acristalamiento
- 36 mm.
Transmitancia térmica y zonas CTE
- UH desde 0,9 (W/m2K)
- Consultar tipología, dimensiones y vidrio
- CTE: Apto para zonas climáticas: α, A, B, C, D, E
- En función de la transmitancia del vidrio
Aislamiento acústico
- Hasta RW: 42 dB
- Según UNE-EN 14351-1 Anexo B / UNE-EN 12354-3:2001 E ISO 717-1:20013
Posibilidades de apertura
![]()
| ![]()
|
![]()
| ![]()
|
![]()
| ![]()
|
- Posibilidad de Tres Carriles y Cuatro carriles
- Corredera empotrada de 1, 2 y 3 hojas
- Corredera sobre muro de 1, 2 y 4 hojas












