serie A-18
Perfiles de Aluminio A-18
La Serie A-18 de EurometalArjona ofrece sistemas de ventanas y balconeras correderas perimetrales con Rotura de Puente Térmico, ideales para grandes cerramientos.
Este sistema se complementa con el Sistema E-22 para la integración de paños fijos y practicables, garantizando un alto aislamiento térmico y acústico. Disponible en diversas configuraciones y acabados, como lacados en colores RAL, efecto madera y anodizados, proporciona soluciones estéticas y funcionales para cualquier proyecto.
[ CORREDERAS / PERIMETRALES ]
A-18
Secciones y espesores
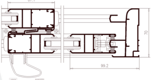
SECCIONES
- Marcos: 79 mm (2 carriles) y 127 mm (3 carriles)
- Hoja: 32 mm
ESPESOR MEDIO TEÓRICO
- 1,4 – 1,5 mm
Dimensiones y pesos máximos
- Peso Maximo por Hoja: 120Kg
Acristalamiento
- Hasta 22 mm
Transmitancia térmica y zonas CTE
- UH desde 2,1 (W/m2K)
- Consultar tipología, dimensiones y vidrio
- CTE: Apto para zonas climáticas: α, A, B, C, D, E
- En función de la transmitancia del vidrio
Aislamiento acústico
- RW: 30(-1;-2)dB
- Según UNE-EN 14351-1:2006 Anexo B para areas <2,7m2
Categorías en banco de ensayo
- Permeabilidad al aire (UNE-EN 1026-2000)
CLASE: 3 - Estanqueidad al agua (UNE-EN 1027-2000)
CLASE: 7A - Resistencia al viento (UNE-EN 12211-2000)
CLASE: C5
Posibilidades de apertura
![]()
| ![]()
|
![]()
| ![]()
|
|
Acabados
- Lacados colores (RAL, moteados y rugosos)
- Lacado efecto madera
- Anodizado

Proyectos Relacionados








